Skip to main content

Bureau à ROUX

76 m2
À vendre 269 000 €

Description

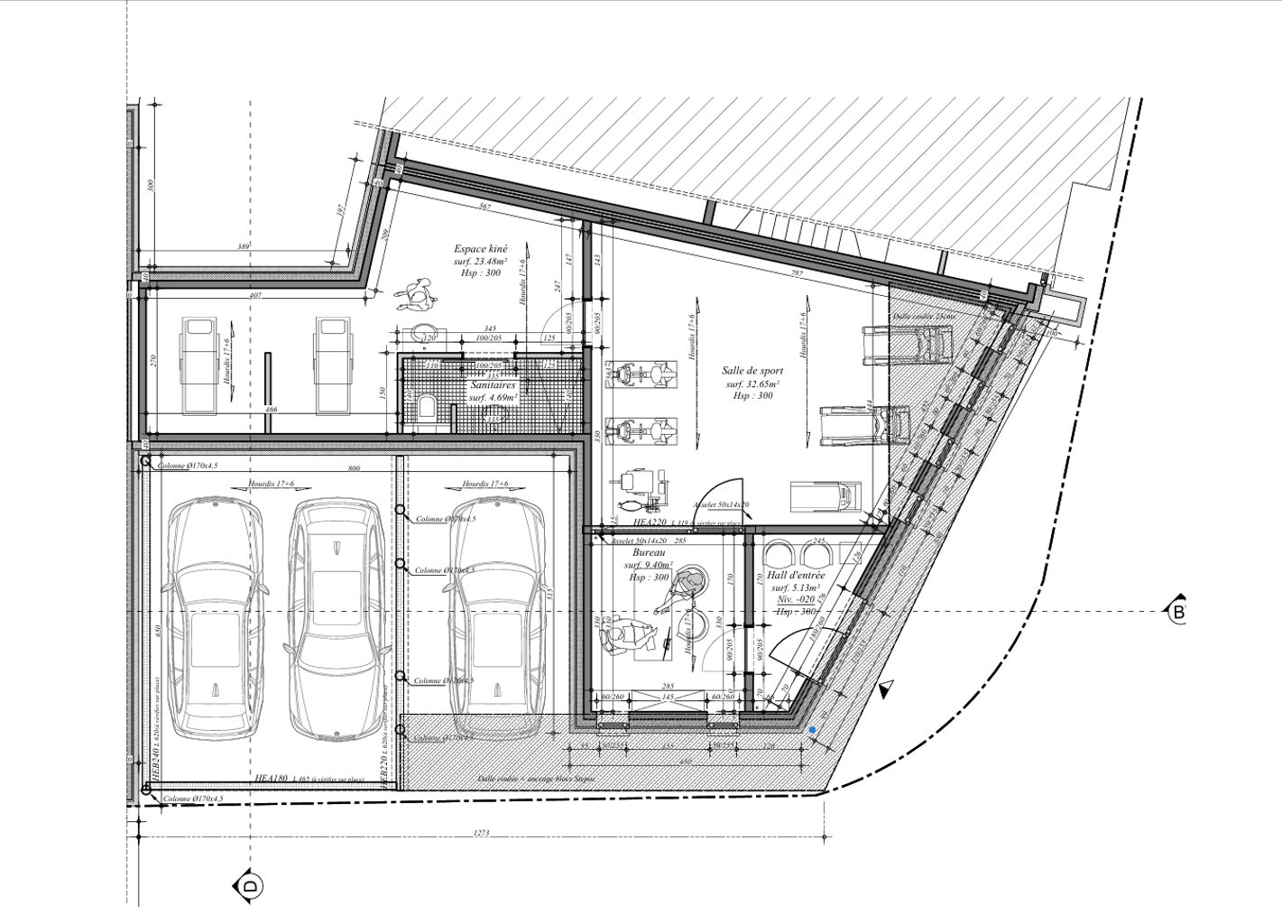
SURFACE PROFESSIONNELLE POUR PROFESSION LIBÉRALE OU INDEPENDANT À NE PAS MANQUER

Surface professionnelle neuve en gros œuvre fermé, idéale pour bureaux, cabinets paramédicaux, dentistes ou toute activité libérale. Bien située dans un quartier avec passage quotidien, elle offre une visibilité optimale pour accueillir votre clientèle.

Chaque espace est modulable : hall d’accueil, salle d’attente, plusieurs bureaux ou cabinets, espace polyvalent pour rééducation, coaching ou ateliers, avec la possibilité de créer plusieurs locaux distincts, de louer une partie des espaces, ou de constituer un petit centre médical ou professionnel.

Avec une façade vitrée, des volumes lumineux et un parking privatif pour 3 voitures, vous avez toute liberté pour aménager vos locaux à votre goût.

Prix à partir de 269.000 € HTVA
Infos & visites – 071/33.19.19

Données générales

  • Référence 7552222
  • Ville ROUX
  • Catégorie Bureau
  • Status de la transaction À vendre
  • Etat du batiment Construction fermée

Configurations

  • Parking Oui
  • Superficie totale 76
  • Superficie terrain 170

Données énergétiques

Interessé ? Contactez nous !